CASAL CATALÀ DE L'HAVANA
15/08/1998

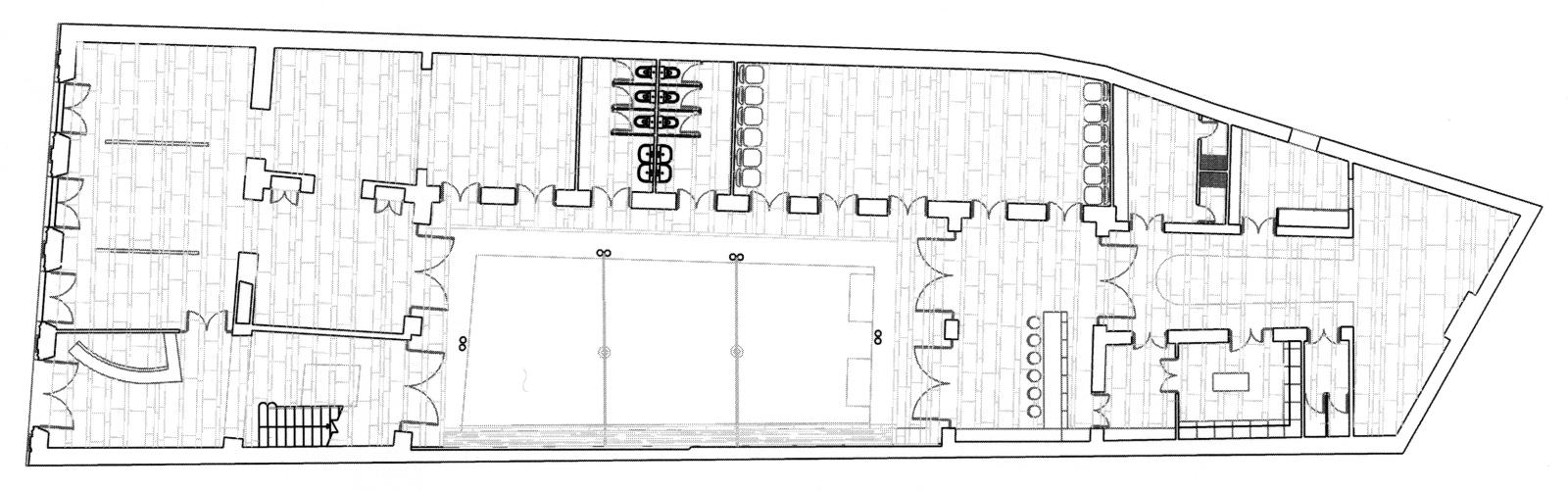
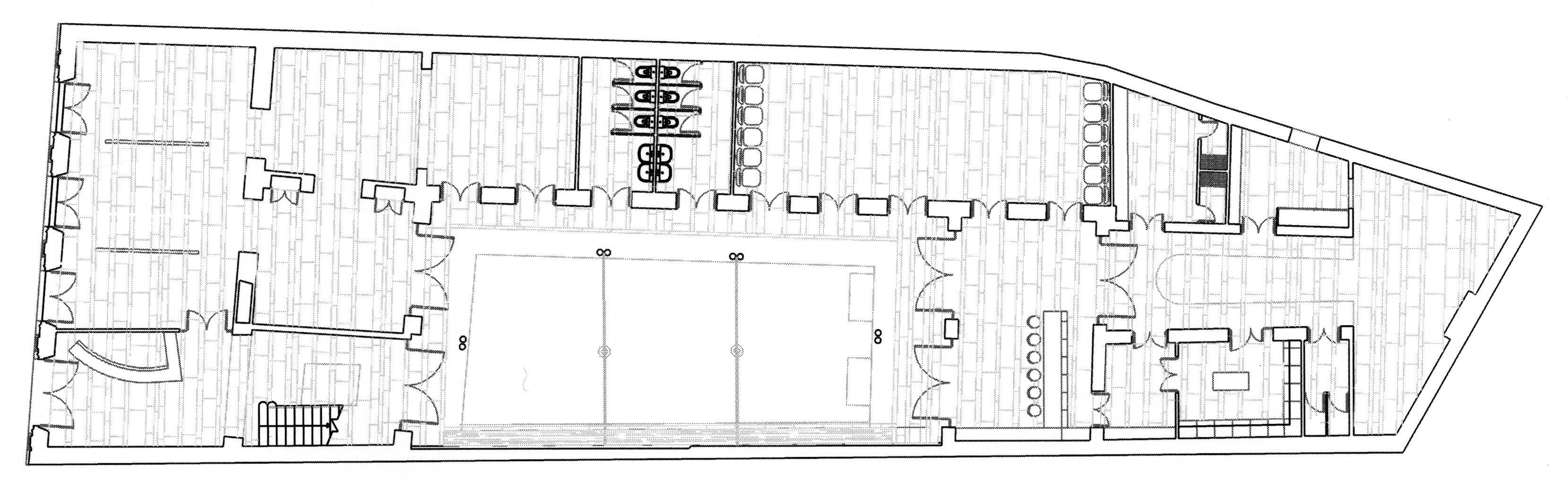
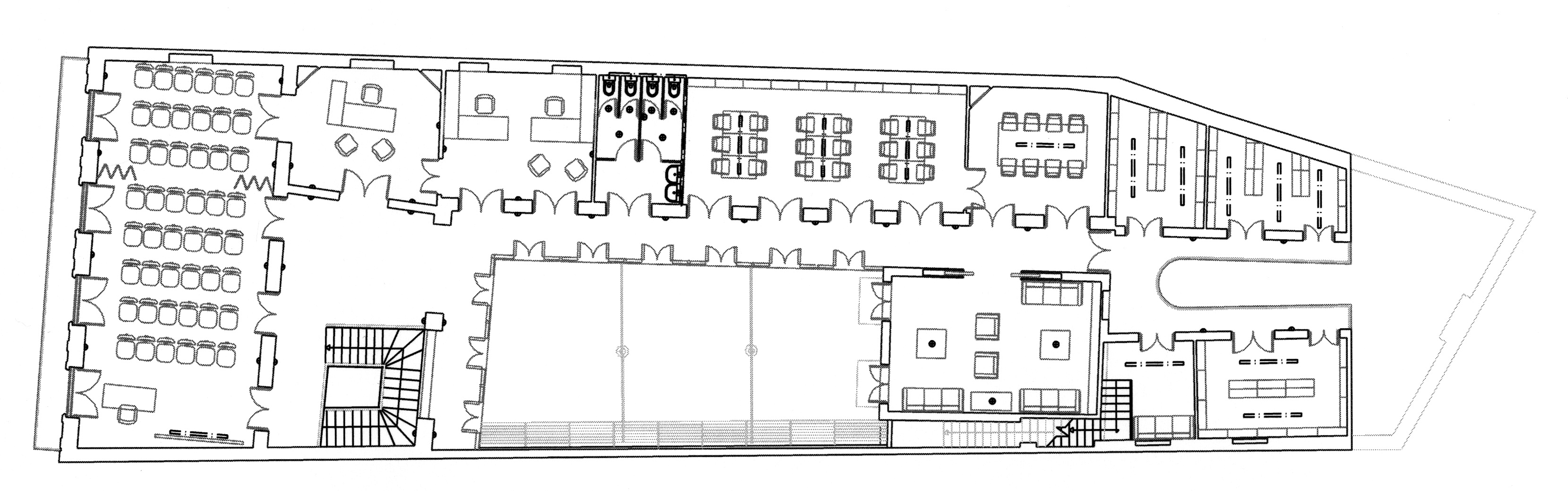
L'any 1998 professors i estudiants de l'escola universitària politècnica de Barcelona, juntament amb l'Institut Municipal del Paisatge Urbà i el Col·legi d'Aparelladors i Arquitectes Tècnics de Barcelona, vam dur a terme projectes de restauració i rehabilitació d'edificis modernistes a la ciutat de l'Havana. El projecte, promogut en el marc de la col·laboració i suport entre Barcelona i la ciutat cubana, tenia per objectiu recuperar l'herència arquitectònica catalana a l'Havana.