ENRIC DILMÉ
dr. arquitecte
Inici
Qui som
Contacte
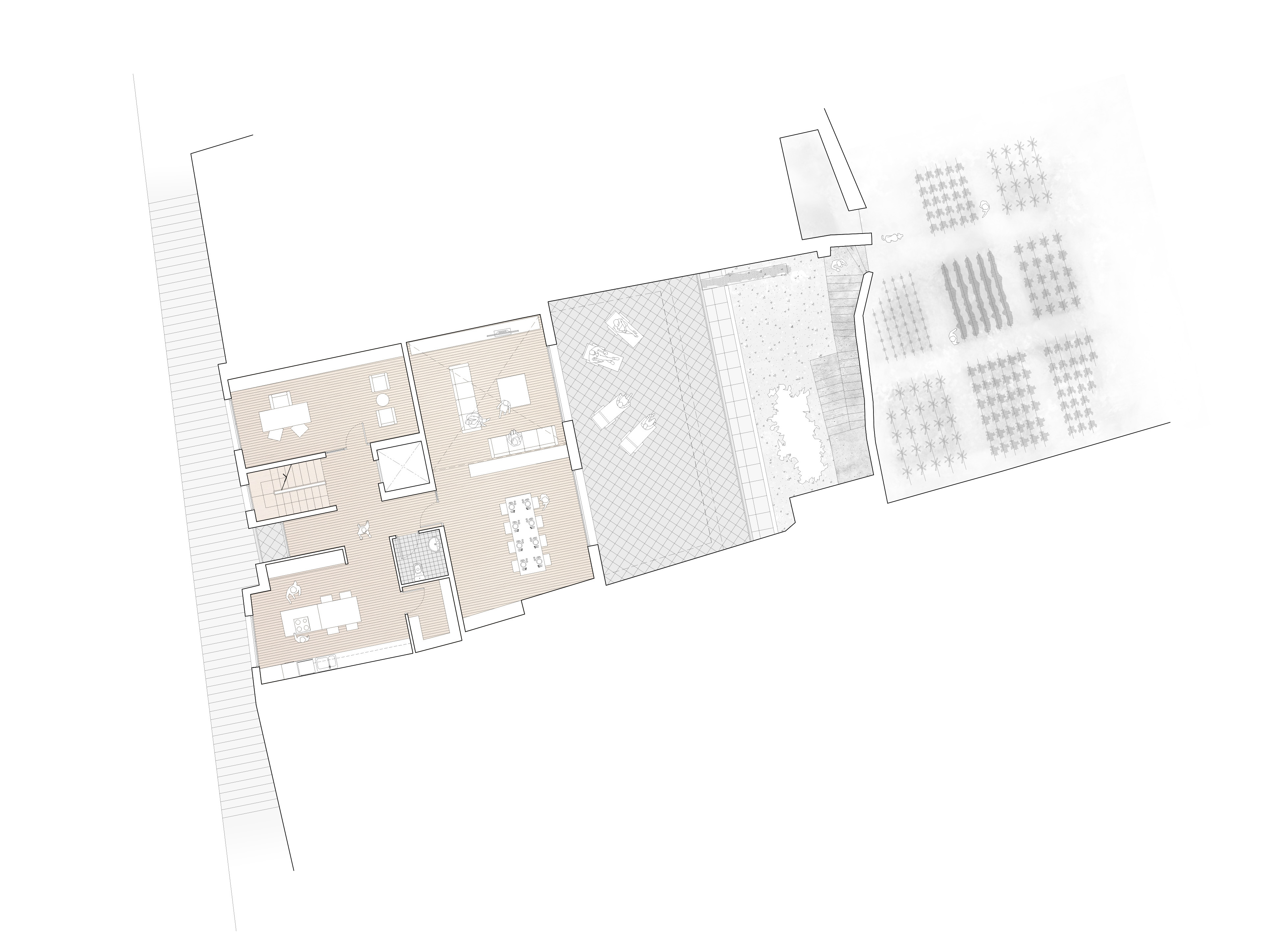
PROJECTE DE VIVENDES A SANT JULIÀ DE LÒRIA
Projectes
03/12/2019