ENRIC DILMÉ
dr. arquitecte
Inici
Qui som
Contacte
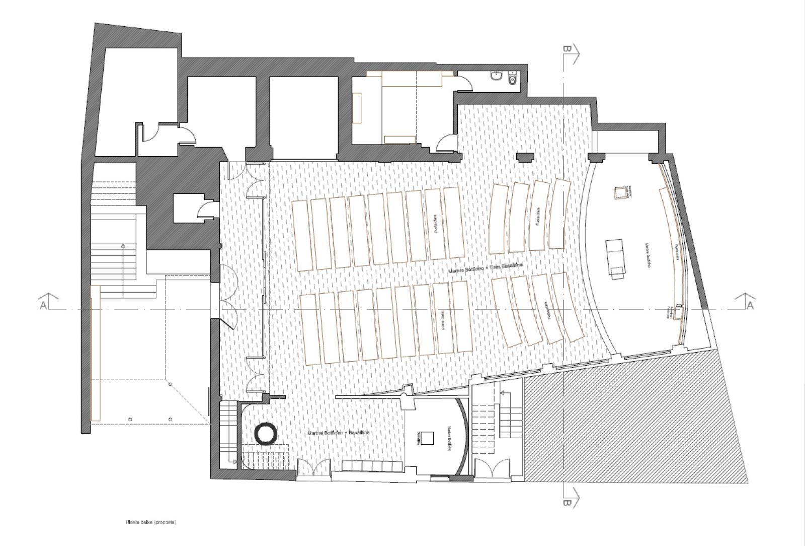
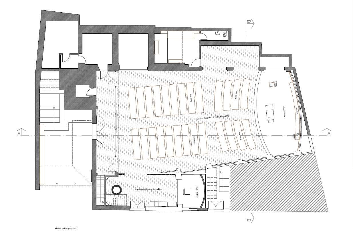
REFORMA I AMPLIACIÓ ESGLÉSIA SANT JULIÀ DE LÒRIA
Projectes
17/02/2013
Proposta realitzada conjuntament amb Joan-Albert Casamajor Esteve, arquitecte.